Negozio in vendita

San Francesco Al Campo, Via Torino
€ 189.000
2 locali 2 locali
204 Mq 204 Mq
2 bagni 2 bagni

Negozio in vendita

San Francesco Al Campo, Via Torino

Descrizione annuncio

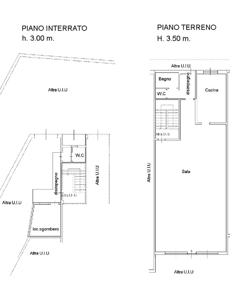
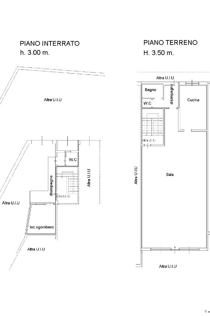
Proponiamo esclusivamente in vendita locale commerciale di circa 200mq ex ristorante/pizzeria.

La proposta si dispone su due livelli. Il locale è accessibile dal piano strada e ha una metratura di circa 150mq composti principalmente dalla sala con angolo forno a legna a vista e la cucina. A completare il piano i servizi igienici riservati alla clientela con bagno accessibile per disabili. Da scala interna o attraverso rampa carrabile esterna si accede al piano seminterrato di 54mq che comprende un ampia autorimessa, un locale sgombero che sipuò adibire a dispensa e un altro servizio igienico privato. Esternamente è presente un dehor coperto di proprietà. Il locale è dotato di tutta l'impiantistica e il riscaldamento è a metano.

Il ristorante si trova a San Francesco al Campo, ben visibile dalla strada provinciale. Fronte negozio sono presenti numerosi parcheggi pubblici. La zona è particolamente frequentata grazie alle attività adiacenti.

Mostra tutto

Nelle vicinanze

Trasporto pubblico Trasporto pubblico
San Maurizio Canavese
San Maurizio Canavese
2,4 Km
San Francesco al Campo (v. Torino)
San Francesco al Campo (v. Torino)
250 m
San Francesco al Campo (bv. Sedime)
San Francesco al Campo (bv. Sedime)
270 m
Scuole Scuole
Scuola Primaria "Pagliero"
2,8 Km
Scuola dell'Infanzia "Albero delle fate"
2,9 Km
Farmacia Farmacia
Farmacia
700 m
Terrone
2,1 Km
Supermercati Supermercati
Crai EXTRA
240 m
Bar Bar
Bar del Moro
1,9 Km
Ristoranti Ristoranti
Londrina
1,1 Km
Aurora
2,0 Km
La Credenza
2,2 Km
Mostra tutto

Caratteristiche

Rif.:
61125335
Piano:
Terra di 1
Totale piani:
1
Box:
1
Condizionamento:
Autonomo
Ascensore:
No
Mostra tutto
Prezzo Prezzo
€ 189.000
Rata mutuo Rata mutuo
€ 892 / mese
Spese annue Spese annue
€ 0
Proponi il tuo prezzoProponi il tuo prezzo

Altre caratteristiche

Descrizione dei locali
Bagno Con Finestra

Classe Energetica

B
B
B
B
B
B
B
B
B
EP globale non rinnovabile:
988.98 kW h/m² anno
EP globale rinnovabile:
20.45 kW h/m² anno
EP invernale del fabbricato:
EP estiva del fabbricato:
Anno di costruzione:
2000
Riscaldamento:
Autonomo
Tipo impianto:
A radiatori
Tipo alimentazione:
Metano

Ti interessa visionare l'immobile?

Fissa un appuntamento  Fissa un appuntamento

Richiedi informazioni

Clicca su Leggi per aprire l'informativa
* Questi campi sono obbligatori

Calcola il tuo mutuo

Semplice e senza impegno
Anticipo

( % )
Mutuo

( % )

pochi semplici passi

inserisci i tuoi dati
Questionario completato
Grazie per aver richiesto un appuntamento senza impegno con un nostro Consulente del Credito e Assicurativo.

Hai inserito correttamente tutti i dati necessari e a breve riceverai una e-mail con un link da convalidare per inviare i tuoi dati.
Affiliato
Lanzo Impresa Sas
Via 11 Settembre 2001, 13 10074 Lanzo Torinese (TO)

Il nostro staff


  • Andrea Dibenedetto
    Collaboratore

  • Giovanni Furchino Capria
    Collaboratore

  • Luigi Vormola
    Affiliato
Via 11 Settembre 2001, 13 10074 Lanzo Torinese (TO)
Zona: Lanzo Torinese
Mostra su mappa
Affiliato
Lanzo Impresa Sas
Via 11 Settembre 2001, 13 10074 Lanzo Torinese (TO)

2025 Tecnocasa Franchising S.p.A. - P. IVA 08365160152 - Via Monte Bianco 60/A 20089 Rozzano (MI). Ogni agenzia ha un proprio titolare ed è autonoma. Privacy policy | Policy utilizzo | Cookie policy